103 17th Street E, BRADENTON, FL 34208
Contact Delia A Davidson
Schedule A Showing
Active
Property Photos
Priced at Only: $520,000
Address: 103 17th Street E, BRADENTON, FL 34208
Est. Payment
For a Fast & FREE
Mortgage Pre-Approval
Apply Now
Mortgage Pre-Approval
Apply Now
Property Location and Similar Properties
- MLS#: TB8441111 ( Residential )
- Street Address: 103 17th Street E
- Viewed: 98
- Price: $520,000
- Price sqft: $194
- Waterfront: No
- Year Built: 2000
- Bldg sqft: 2680
- Bedrooms: 3
- Total Baths: 4
- Full Baths: 2
- 1/2 Baths: 2
- Garage / Parking Spaces: 2
- Days On Market: 150
- Additional Information
- Geolocation: 27.4993 / -82.5444
- County: MANATEE
- City: BRADENTON
- Zipcode: 34208
- Subdivision: Riverside Heights
- Elementary School: Manatee Elementary School MN
- Middle School: Martha B. King Middle
- High School: Manatee High
- Provided by: FOREVER FLORIDA REAL ESTATE
- Contact: Delia Davidson
- 727-440-6444

- DMCA Notice
-
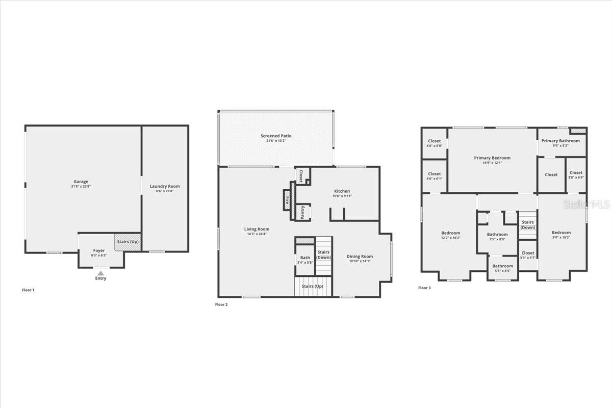
DescriptionThis unique elevated, waterview property backs up to a tranquil 1.6 acre waterfront private park with a boat ramp (Partial ownership TRANSFERS to the buyer of this property). Enjoy fishing, swimming, or taking your kayak or jet skis out on the water. On the first floor you will find an oversized garage with storage space with an elevated laundry room, half bath and a lovely loft area. You will find the main living area on the second floor with the kitchen, dining room, living room with fireplace, and a nicepowder room. A generously sized screened porch and an open deck share the awesome waterview. On the top floor you will find the primary bedroom, primary bath, the two guest bedrooms that share a hall bath. This property has a fenced in yard perfect to keep your fur babies in and allowing easy access to your waterfront park. Tons of parking for all of your toys and boats. The Riverwalk extension is walking distance from this home and adds to your active Florida lifestyle. Walk or bike ride to your favorite restaurants along the Bradenton Riverwalk. Perfect for kayakers, SUP, and jet skis too. No deed restrictions here! East of Historic River District & popular Downtown Riverwalk. Short bicycle or car ride to the farmers market, restaurants, park, library, public art, shopping, The South Florida Museum, Manatee Historical Village Park, Art Center Manatee, Local Award Winning Breweries, Manatee Performing Arts Center, or Lecom Baseball Park. Short distance away from the best GULF beaches, Sarasota Airport and attractions, St Pete 25 minutes away, Tampa Airport 45 minutes, Great centrally located home! Buyer to verify measurements.
Features
Building and Construction
- Covered Spaces: 0.00
- Exterior Features: Balcony
- Fencing: Vinyl
- Flooring: Ceramic Tile, Laminate, Wood
- Living Area: 1694.00
- Roof: Shingle
Land Information
- Lot Features: Near Public Transit
School Information
- High School: Manatee High
- Middle School: Martha B. King Middle
- School Elementary: Manatee Elementary School-MN
Garage and Parking
- Garage Spaces: 2.00
- Open Parking Spaces: 0.00
- Parking Features: Boat, Driveway, Garage Faces Rear, Garage Faces Side
Eco-Communities
- Water Source: Public
Utilities
- Carport Spaces: 0.00
- Cooling: Central Air
- Heating: Central, Electric
- Pets Allowed: Cats OK, Dogs OK, Yes
- Sewer: Public Sewer
- Utilities: Cable Connected, Electricity Connected, Public, Sewer Connected
Finance and Tax Information
- Home Owners Association Fee: 360.00
- Insurance Expense: 0.00
- Net Operating Income: 0.00
- Other Expense: 0.00
- Tax Year: 2024
Other Features
- Appliances: Dishwasher, Disposal, Dryer, Electric Water Heater, Exhaust Fan, Range, Refrigerator, Washer
- Association Name: C. Smith
- Country: US
- Furnished: Partially
- Interior Features: Ceiling Fans(s), Smart Home, Solid Surface Counters, Thermostat, Walk-In Closet(s), Window Treatments
- Legal Description: LOT 5 RIVERSIDE HEIGHTS SUB PI#12429.0030/4
- Levels: Three Or More
- Area Major: 34208 - Bradenton/Braden River
- Occupant Type: Owner
- Parcel Number: 1242900304
- Possession: Close Of Escrow
- Style: Colonial
- View: Park/Greenbelt, Trees/Woods, Water
- Views: 98
- Zoning Code: R1B
Payment Calculator
- Principal & Interest -
- Property Tax $
- Home Insurance $
- HOA Fees $
- Monthly -
Similar Properties
Nearby Subdivisions
Amberly Ph I
Amberly Ph Ii
Balli Acres
Bella Sole Riverdale
Belle Chase
Braden Castle Park
Braden Manor
Braden River Lakes
Bradencottages
Cortez Landings
Cottages At San Casciano
Cottages At San Lorenzo
Eastover
Evergreen
Evergreen Estates
Evergreen Ph I
Evergreen Ph Ii
Fair Oaks
Harbor Haven
Harbour Walk
Harbour Walk At The Inlets
Harbour Walk Inlets Riverdale
Harourwalk At The Inlets
Hazelhurst
Hidden Lagoon Ph Ii
Highland
Highland First Add
Highland Ridge
Hill Park
Lincoln Heights Continued
Magnolia Manor River Sec
Orange Ridge
Pettigrew Park
Pinecrest
Pleasant Ridge
Pony Trails
River Haven
River Heights
River Isles
River Sound
River Sound Rev Por
Riverdale
Riverdale Resubdivided
Riverdale Rev
Riverdale Revised
Riverside Heights
Sr 64 Executive Storage
Sugar Ridge
The Inlets At Riverdale Rev
The Inletsriverdale Rev
The Reserve At Harbour Walk
Tidewater Preserve 2
Tidewater Preserve 3
Tidewater Preserve 4
Tidewater Preserve 5
Tidewater Preserve Ph I
Tropical Shores
Villages Of Glen Creek Ph 1b
























































