1711 Magdalene Manor Drive, TAMPA, FL 33613
Contact Jonathan P Minerick
Schedule A Showing
Active
Property Photos
Priced at Only: $995,000
Address: 1711 Magdalene Manor Drive, TAMPA, FL 33613
Est. Payment
For a Fast & FREE
Mortgage Pre-Approval
Apply Now
Mortgage Pre-Approval
Apply Now
Property Location and Similar Properties
- MLS#: TB8492899 ( Residential )
- Street Address: 1711 Magdalene Manor Drive
- Viewed: 3
- Price: $995,000
- Price sqft: $211
- Waterfront: No
- Year Built: 1986
- Bldg sqft: 4711
- Bedrooms: 4
- Total Baths: 3
- Full Baths: 3
- Garage / Parking Spaces: 3
- Days On Market: 1
- Additional Information
- Geolocation: 28.0756 / -82.4792
- County: HILLSBOROUGH
- City: TAMPA
- Zipcode: 33613
- Subdivision: Lake Magdalene Manors
- Middle School: Hill HB
- High School: Chamberlain HB
- Provided by: HOMECOIN.COM
- Contact: Jonathan Minerick
- 888-400-2513

- DMCA Notice
-
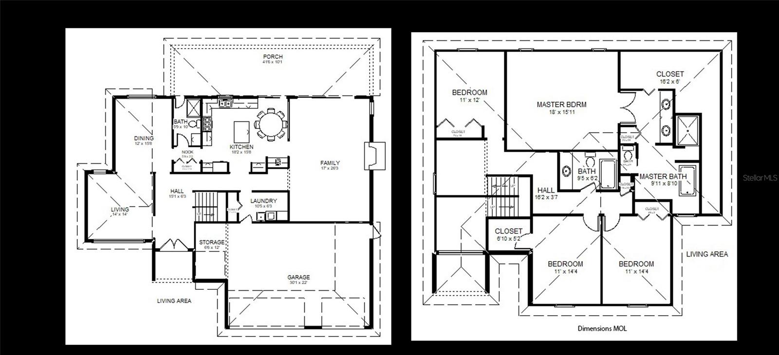
DescriptionA Rare Opportunity in Coveted Lake Magdalene Manors In one of the most sought after communities, on an oversized corner lot, this beautifully updated residence offers exceptional indooroutdoor living with peaceful waterfront views. Lake Magdalene Manors is known for its serene tree lined streets and community amenities, including clubhouse, tennis and pickleball courts, playground, and its unrivaled convenience to all of Tampa Bay. Expansive Living & Thoughtful Design With 3,543 square feet, 4 bedrooms, 3 full baths, and a versatile loft, this home welcomes you with a dramatic two story foyer that sets the tone for the openness and elegance that follow. The generous primary suite provides a private retreat with a spa inspired bath, while spacious secondary bedrooms comfortably accommodate guests. The loft offers flexibility for a home office, study area, fitness space, or creative studio. Perfect for Entertaining The heart of the home centers around an entertainment ready kitchen and wet bar that flow seamlessly into a large family room anchored by a cozy fireplace. Serious chefs will appreciate the efficient kitchen layout, upscale stainless steel gas range, convection oven, custom hood, and built in refrigeratorideal for efficient meal prep and hosting. Sliding doors open to a huge, screened lanai overlooking the updated heated pool and expansive deckyour year round setting for casual gatherings, celebrations, game days, and relaxing weekends. The oversized yard adds abundant space for outdoor play and pets. Modern, Move In Comforts & Recent Enhancements Large, eat in kitchen Updated cabinetry and baths Updated pool and deck New roof and pool heater Modern, low maintenance flooring throughout Updated, split air conditioning systems Digital cameras, thermostat, security and lighting controls 3 car garage with workshop/storage space and easy attic access Unbeatable Tampa Bay Convenience Minutes from premier shopping and dining, top schools, major sports venues, attractions, beaches, and Tampa International Airport, this location blends quiet neighborhood living with everyday accessibility. This exceptional homeon a rare corner lot in one of Tampas premier communitiesoffers the lifestyle and space youve been searching for.
Features
Building and Construction
- Covered Spaces: 0.00
- Exterior Features: Rain Gutters, Sidewalk, Sliding Doors
- Flooring: Carpet, Other, Tile, Wood
- Living Area: 3543.00
- Roof: Shingle
Property Information
- Property Condition: Completed
Land Information
- Lot Features: Corner Lot, Level, Near Public Transit, Oversized Lot, Sidewalk, Paved, Unincorporated
School Information
- High School: Chamberlain-HB
- Middle School: Hill-HB
Garage and Parking
- Garage Spaces: 3.00
- Open Parking Spaces: 0.00
Eco-Communities
- Pool Features: Deck, Gunite, Heated, In Ground, Lighting, Screen Enclosure
- Water Source: Public
Utilities
- Carport Spaces: 0.00
- Cooling: Central Air, Zoned
- Heating: Central, Electric, Heat Pump, Zoned
- Pets Allowed: Yes
- Sewer: Public Sewer
- Utilities: BB/HS Internet Available, Cable Available, Electricity Connected, Fiber Optics, Phone Available, Propane, Public, Sewer Connected, Sprinkler Meter, Underground Utilities, Water Connected
Amenities
- Association Amenities: Clubhouse, Maintenance, Pickleball Court(s), Playground, Tennis Court(s)
Finance and Tax Information
- Home Owners Association Fee Includes: Common Area Taxes, Escrow Reserves Fund, Insurance, Maintenance Grounds, Management, Recreational Facilities
- Home Owners Association Fee: 80.00
- Insurance Expense: 0.00
- Net Operating Income: 0.00
- Other Expense: 0.00
- Tax Year: 2025
Other Features
- Appliances: Convection Oven, Dishwasher, Disposal, Electric Water Heater, Microwave, Range, Range Hood, Refrigerator
- Association Name: Greenacre Properties Inc
- Association Phone: 813-600-1100
- Country: US
- Furnished: Unfurnished
- Interior Features: Ceiling Fans(s), Eat-in Kitchen, Open Floorplan, Solid Surface Counters, Solid Wood Cabinets, Stone Counters, Thermostat, Vaulted Ceiling(s), Walk-In Closet(s), Wet Bar
- Legal Description: LAKE MAGDALENE MANORS LOT 1 BLK 4
- Levels: One
- Area Major: 33613 - Tampa
- Occupant Type: Owner
- Parcel Number: U-02-28-18-0TM-000004-00001.0
- Style: Contemporary
- View: Pool, Water
- Zoning Code: RSC-4
Payment Calculator
- Principal & Interest -
- Property Tax $
- Home Insurance $
- HOA Fees $
- Monthly -













































