Address: 3501 1st Avenue S, ST PETERSBURG, FL 33711
Description
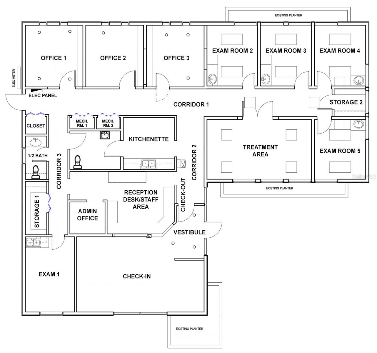
Low risk investment with annual growth | prime st. Petersburg location. . . Rare opportunity to own a triple net (nnn) leased commercial building in the heart of st. Petersburgan ideal addition to any investment portfolio, especially for hands off investors or those pursuing a 1031 exchange. . . This 2,628 square foot standalone building is fully leased to a well established veterinary hospital. The long term tenant is responsible for rent, 50% of annual property taxes, insurance, all operating expenses, utilities, and lawn maintenance offering a reliable and low maintenance income stream. . . Investment highlights: annual 3% rental increases: consistent cash flow with built in growth lease term: 5 years remaining with a 5 year renewal option tenant: thriving veterinary hospital in operation prime corner location: 1st avenue s & 35th streetjust one block from us 19/34th street, ensuring visibility and high traffic volume upgrades & maintanence: new roof, painted soffit/fascia (2024), and $12,000 in elective tree removal and pruningreflecting proactive care. . . Property features: 11 parking spaces (including 2 ada compliant) + dedicated staff/doctor parking. . . Three convenient driveways for easy ingress/egress. . . Circular drop off and pick up area at front entrance. . . Surrounded by established businesses and accessible via major routes, this location benefits from consistent foot and vehicle traffic, increasing both tenant stability and long term property value. With its low risk profile and growing returns, this is a rare chance to secure a cash flow positive asset in one of st. Petes most vibrant commercial corridors.
Low risk investment with annual growth | prime st. Petersburg location. . . Rare opportunity to own a triple net (nnn) leased commercial building in the heart of st. Petersburgan ideal addition to any investment portfolio, especially for hands off investors or those pursuing a 1031 exchange. . . This 2,628 square foot standalone building is fully leased to a well established veterinary hospital. The long term tenant is responsible for rent, 50% of annual property taxes, insurance, all operating expenses, utilities, and lawn maintenance offering a reliable and low maintenance income stream. . . Investment highlights: annual 3% rental increases: consistent cash flow with built in growth lease term: 5 years remaining with a 5 year renewal option tenant: thriving veterinary hospital in operation prime corner location: 1st avenue s & 35th streetjust one block from us 19/34th street, ensuring visibility and high traffic volume upgrades & maintanence: new roof, painted soffit/fascia (2024), and $12,000 in elective tree removal and pruningreflecting proactive care. . . Property features: 11 parking spaces (including 2 ada compliant) + dedicated staff/doctor parking. . . Three convenient driveways for easy ingress/egress. . . Circular drop off and pick up area at front entrance. . . Surrounded by established businesses and accessible via major routes, this location benefits from consistent foot and vehicle traffic, increasing both tenant stability and long term property value. With its low risk profile and growing returns, this is a rare chance to secure a cash flow positive asset in one of st. Petes most vibrant commercial corridors.
Features
Building and Construction
Covered Spaces: 0.00
Living Area: 2628.00
Roof: Shingle
Garage and Parking
Garage Spaces: 0.00
Open Parking Spaces: 0.00
Utilities
Carport Spaces: 0.00
Cooling: Central Air
Road Frontage Type: Alley, Business District, City Street, Turn Lanes
Finance and Tax Information
Home Owners Association Fee: 0.00
Insurance Expense: 0.00
Net Operating Income: 2917.00
Other Expense: 0.00
Tax Year: 2024
Other Features
Accessibility Features: Accessible Entrance
Country: US
Legal Description: WEST CENTRAL AVE SUB BLK B PART REP BLK B, LOT 1
New Listings & Price Reduction Updates sent directly to your email
Create Your Own Property Search saved for your return visit.
"Like" Listings and Create a Favorites List
* NOTICE: By creating your free profile, you authorize us to send you periodic emails about new listings that match your saved searches and related real estate information.If you provide your telephone number, you are giving us permission to call you in response to this request, even if this phone number is in the State and/or National Do Not Call Registry.