2122 28th Place, OCALA, FL 34470
Active
Property Photos
Would you like to sell your home before you purchase this one?
Priced at Only: $274,990
For more Information Call:
Address: 2122 28th Place, OCALA, FL 34470
Property Location and Similar Properties
- MLS#: OM718078 ( Residential )
- Street Address: 2122 28th Place
- Viewed: 1
- Price: $274,990
- Price sqft: $207
- Waterfront: No
- Year Built: 2026
- Bldg sqft: 1328
- Bedrooms: 3
- Total Baths: 2
- Full Baths: 2
- Garage / Parking Spaces: 2
- Days On Market: 53
- Additional Information
- Geolocation: 29.2159 / -82.1086
- County: MARION
- City: OCALA
- Zipcode: 34470
- Subdivision: Emerson Pointe
- Elementary School: Ocala Springs Elem. School
- Middle School: Fort King Middle School
- High School: Vanguard High School
- Provided by: DR HORTON REALTY OF WEST CENTRAL FLORIDA
- Contact: Jessica Cruz
- 352-414-3365

- DMCA Notice
-
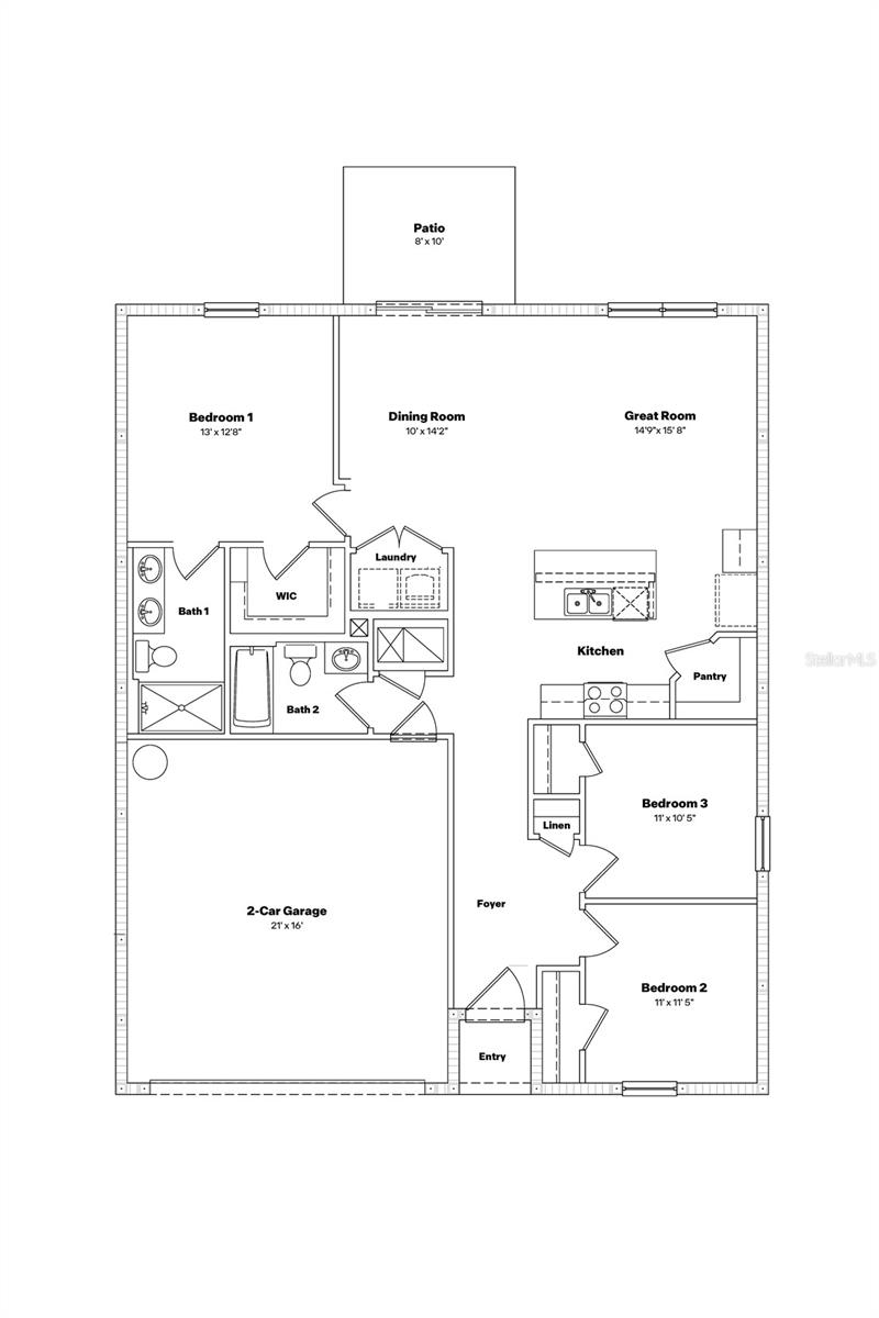
DescriptionUnder Construction. This single story, all concrete block constructed 3 bedroom, 2 bathroom home features an open concept floorplan that optimizes living space. The spacious kitchen overlooks the great room, dining area, and outdoor patio. The kitchen comes full equipped with stainless steel appliances including a built in dishwasher, range, and microwave. The primary suite is located towards the back of the home, featuring a spacious walk in closet and ensuite bathroom with double vanity sinks. Two additional bedrooms are located towards the front of the home and share a bathroom across the hall. Pictures, photographs, colors, features, and sizes are for illustration purposes only and will vary from the homes as built. Home and community information including pricing, included features, terms, availability and amenities are subjext to change and prior sale at any time without notice or obligation. CRC057592.
Payment Calculator
- Principal & Interest -
- Property Tax $
- Home Insurance $
- HOA Fees $
- Monthly -
Features
Building and Construction
- Builder Model: Archer II
- Builder Name: DR Horton INC
- Covered Spaces: 0.00
- Flooring: Carpet, Luxury Vinyl
- Living Area: 1328.00
- Roof: Shingle
Property Information
- Property Condition: Under Construction
School Information
- High School: Vanguard High School
- Middle School: Fort King Middle School
- School Elementary: Ocala Springs Elem. School
Garage and Parking
- Garage Spaces: 2.00
- Open Parking Spaces: 0.00
Eco-Communities
- Water Source: Public
Utilities
- Carport Spaces: 0.00
- Cooling: Central Air
- Heating: Electric, Heat Pump
- Pets Allowed: Yes
- Sewer: Public Sewer
- Utilities: Other
Finance and Tax Information
- Home Owners Association Fee: 95.00
- Insurance Expense: 0.00
- Net Operating Income: 0.00
- Other Expense: 0.00
- Tax Year: 2025
Other Features
- Appliances: Dishwasher, Microwave, Range
- Association Name: Boyd Property Management
- Country: US
- Furnished: Unfurnished
- Interior Features: Open Floorplan
- Legal Description: SEC 04 TWP 15 RGE 22 PLAT BOOK 016 PAGE 124 EMERSON POINTE PHASE 1A LOT 97
- Levels: One
- Area Major: 34470 - Ocala
- Occupant Type: Vacant
- Parcel Number: 24286-097-00
- Zoning Code: PUD
Similar Properties
Nearby Subdivisions
Alderbrook
Autumn Oaks
Autumn Rdg Ph 01
Baldwin Heights
Belmont Pines
Country Estate
Emerson Pointe
Ethans Glen
Fox Hollow
Fox Mdw Un 01
Fox Meadow
Fox Meadow 02
Fox Meadow Un 01 Bldg 18
Fox Meadows
Golfview Add 01
Granthams Sub
Grapeland Terrace
Green Rdg Acres
Heritage Hills
Heritage Hills Rep
Hilldale
Hilldale Sub
Lynwood Estates
Magnolia Villas A Condo
Marion Oaks
Mira Mar
No Sub
Non Sub
Northpointe Villas
Northwood Park
Not In Subdivision
Not On List
O L Andrews Unr
Oak Hill Plantation
Oak Hill Plantation Ph 01
Oak Hill Plantation Ph 1
Oak Hill Plantation Ph 2b Rep
Oak Hill Plantation Ph I
Oakcrest Homesites
Oakhill Plantation
Ocala Heights
Ocala Hlnds
Raven Glen
Raven Glen Un 01
Raven Glen Un 02
Sevilla Estate
Seymours
Silver Spgs Forest
Silver Terrace
Silvercrest
Spring Hlnds
Stonewood Villas
Stonewood Villas 03
Summit Place
The Village
Victoria Station
Village North

































