Call Now: 750.420.3943

Wade M. Berlin

ABR,BrkrAssc,CNE,CPM,FSSR,GAA,LLC,PMN,REALTOR ®,SRES
Broker IDX Sites Inc.
We are the World
Property Photos
807 Andrew Street
  1. Image 1 of 3 For 807 Andrew Street
  2. Image 2 of 3 For 807 Andrew Street
  3. Image 3 of 3 For 807 Andrew Street
Image Gallery

PRICED AT ONLY: $357,490

Address: 807 Andrew Street, WINTER HAVEN, FL 33881

Description

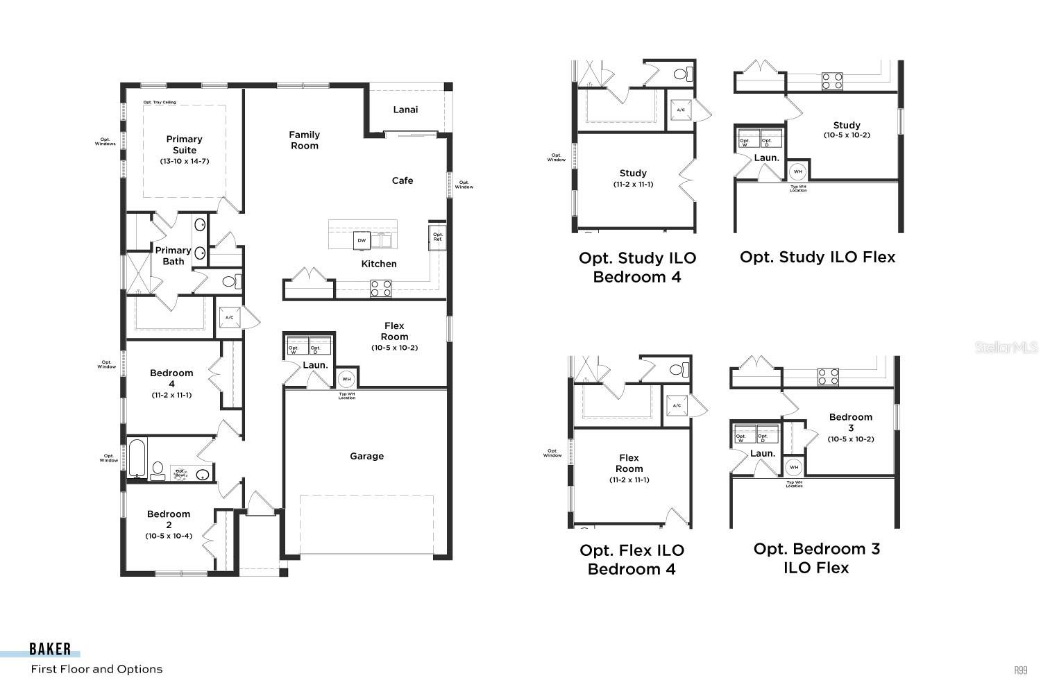
Under Construction. Welcome to the Baker floor plan a spacious 3 bedroom, 2 bath home with a versatile flex space designed to fit your lifestyle. As you walk through the front door, youre greeted by a bright and inviting foyer that opens to two comfortable bedrooms at the front of the home, perfectly positioned around a beautifully appointed full bathroom. Down the hallway, youll find a convenient flex space ideal for a home office, playroom, or reading nook. Continue into the heart of the home and youll instantly fall in love with the open concept layout. The large kitchen, featuring stunning granite countertops, crisp cabinets, and sleek 17x17 tile flooring, seamlessly overlooks the dining and living areas making it perfect for entertaining or gathering with family. Just off the dining area, sliding doors lead to your covered lanai, offering a peaceful view of the backyard a wonderful space to relax and enjoy your morning coffee or evening breeze. Tucked privately at the back of the home, the primary suite is a true retreat with a spacious layout and an elegant ensuite bathroom complete with dual vanities and a walk in shower. With its open design, modern finishes, and thoughtful flow, the Baker floor plan effortlessly combines comfort, style, and functionality the perfect place to call home.
Payment Calculator
  •   Principal & Interest -
  •   Property Tax $
  •   Home Insurance $
  •   HOA Fees $
  •   Mortgage Insurance-

  •   Monthly -
For a Fast & FREE Mortgage Pre-ApprovalApply Now
  • MLS#: O6355677 ( Residential )
  • Street Address: 807 Andrew Street
  • Viewed: 1
  • Price: $357,490
  • Price sqft: $148
  • Waterfront: No
  • Year Built: 2025
  • Bldg sqft: 2414
  • Bedrooms: 3
  • Total Baths: 2
  • Full Baths: 2
  • Garage / Parking Spaces: 2
  • Days On Market: 5
Request More Information
  • All fields are required.
Features
Building and Construction
  • Builder Model: Baker
  • Builder Name: DRB Homes
  • Covered Spaces: 0.00
  • Exterior Features: Sidewalk, Sliding Doors, Sprinkler Metered
  • Flooring: Carpet, Tile
  • Living Area: 1814.00
  • Roof: Shingle
Property Information
  • Property Condition: Under Construction
Land Information
  • Lot Features: Corner Lot, Landscaped, Near Golf Course, Sidewalk, Paved
School Information
  • High School: Winter Haven Senior
  • Middle School: Denison Middle
  • School Elementary: Lake Alfred Elem
Garage and Parking
  • Garage Spaces: 2.00
  • Open Parking Spaces: 0.00
  • Parking Features: Driveway, Garage Door Opener
Eco-Communities
  • Water Source: Public
Utilities
  • Carport Spaces: 0.00
  • Cooling: Central Air
  • Heating: Central, Electric
  • Pets Allowed: Yes
  • Sewer: Public Sewer
  • Utilities: Electricity Connected, Public, Sewer Connected, Water Connected
Amenities
  • Association Amenities: Pool
Finance and Tax Information
  • Home Owners Association Fee Includes: None
  • Home Owners Association Fee: 6.25
  • Insurance Expense: 0.00
  • Net Operating Income: 0.00
  • Other Expense: 0.00
  • Tax Year: 2025
Other Features
  • Appliances: Dishwasher, Disposal, Electric Water Heater, Microwave, Range
  • Association Name: Highland Community Management
  • Association Phone: (863) 940-2683
  • Country: US
  • Furnished: Unfurnished
  • Interior Features: Primary Bedroom Main Floor, Stone Counters, Walk-In Closet(s)
  • Legal Description: WILLOWBROOK NORTH PB 214 PGS 4-19 LOT 102
  • Levels: One
  • Area Major: 33881 - Winter Haven / Florence Villa
  • Occupant Type: Vacant
  • Parcel Number: 26-28-10-530502-001020
  • Possession: Close Of Escrow
  • Style: Traditional
  • Zoning Code: RES
Similar Properties

Details for 673 Sarner Pass Way, WINTER HAVEN, FL 33881
$419,900.00 ($111.97 / sqft )

673 Sarner Pass Way Virtual Tour More Like This

Beautiful property in an oversize lot ( 15,550 sq ft , more than 1/3 of acre ) over 3000 sq ft under air, all tile on the first floor, upon entereing the home it features an office, overlooking the fo

  1. Bedrooms: 4
  2. Baths: 3
  3. Approx. 3750 sqft
  1. MLSID: S5126495
  2. Provided by ZEA REALTY & ASSOCIATES
  3. Contact Consuelo Zea
  4. mfrmls
  5. DMCA Notice
Details for 1505 Lake Mirror Drive Nw, WINTER HAVEN, FL 33881
$389,990.00 ($133.19 / sqft )

1505 Lake Mirror Drive Nw Virtual Tour More Like This

Welcome to this beautifully updated home nestled in the heart of Winter Haven, Florida! Situated on an oversized corner lot with lake access, this charming 3 bedroom, 2.5 bath residence offers over 1,

  1. Bedrooms: 3
  2. Baths: 3
  3. Approx. 2928 sqft
  1. MLSID: O6319237
  2. Provided by KELLER WILLIAMS WINTER PARK
  3. Contact Joseph Sipp
  4. mfrmls
  5. DMCA Notice
Details for 930 Cattleman Street, WINTER HAVEN, FL 33881
$360,000.00 ($131.68 / sqft )

930 Cattleman Street Virtual Tour New Construction More Like This

Welcome to 930 Cattleman St, located in the charming community of Inman Groves in Winter Haven, FL. The property is VACANT, This spacious Boston model by Lennar offers an ideal blend of comfort, func

  1. Bedrooms: 5
  2. Baths: 3
  3. Approx. 2734 sqft
  1. MLSID: O6315250
  2. Provided by EXP REALTY LLC
  3. Contact Carlos Lopez Cadena
  4. mfrmls
  5. DMCA Notice
Details for 411 Sunfish Drive, WINTER HAVEN, FL 33881
$365,000.00 ($102.10 / sqft )

411 Sunfish Drive Virtual Tour Green Listing More Like This

One or more photo(s) has been virtually staged. Exceptional Living Starts here in Lucerne Park in Winter Haven one of the fastest growing metro areas! This home has undergone so many upgrades you'll

  1. Bedrooms: 4
  2. Baths: 3
  3. Approx. 3575 sqft
  1. MLSID: TB8416343
  2. Provided by SMITH & ASSOCIATES REAL ESTATE
  3. Contact Ami Rivera
  4. mfrmls
  5. DMCA Notice
Details for 256 Meredith Boulevard, WINTER HAVEN, FL 33881
$417,546.00 ($135.83 / sqft )

256 Meredith Boulevard New Construction Reduced More Like This

Under Construction. Welcome to this stunning Dream Finders Winston floorplan, located in the highly sought after community of Willowbrook near a beautiful golf course in Winter Haven, FL. This spaciou

  1. Bedrooms: 5
  2. Baths: 3
  3. Approx. 3074 sqft
  1. MLSID: G5101792
  2. Provided by OLYMPUS EXECUTIVE REALTY INC
  3. Contact Nancy Pruitt, PA
  4. mfrmls
  5. DMCA Notice
Details for 814 Turner Lane, WINTER HAVEN, FL 33881
$390,000.00 ($122.80 / sqft )

814 Turner Lane Virtual Tour More Like This

Welcome to 814 Turner Lane, a beautifully upgraded Hayden model by D.R. Horton located in the heart of Winter Haven! ?? This spacious two story home offers 5 bedrooms, 3 full bathrooms, and over 2,500

  1. Bedrooms: 5
  2. Baths: 3
  3. Approx. 3176 sqft
  1. MLSID: S5134153
  2. Provided by KELLER WILLIAMS LEGACY REALTY
  3. Contact Rafael Ortiz Pena
  4. mfrmls
  5. DMCA Notice
Details for 321 Meredith Boulevard, WINTER HAVEN, FL 33881
$384,990.00 ($146.55 / sqft )

321 Meredith Boulevard Virtual Tour New Construction More Like This

Welcome to the beautiful Naples floor plan, a spacious 4 bedroom, 2.5 bath home perfectly situated on an amazing corner homesite with a charming farmhouse elevation. As you enter, you are greeted by s

  1. Bedrooms: 4
  2. Baths: 3
  3. Approx. 2627 sqft
  1. MLSID: O6342286
  2. Provided by DRB GROUP REALTY, LLC
  3. Contact Adam Schott
  4. mfrmls
  5. DMCA Notice
Details for 260 Meredith Boulevard, WINTER HAVEN, FL 33881
$385,761.00 ($142.24 / sqft )

260 Meredith Boulevard Virtual Tour New Construction Reduced More Like This

Under Construction. Welcome to this stunning Dream Finders Poinciana Floorplan, located in the highly sought after community of Willowbrook near a beautiful Golf Course in Winter Haven, FL. This spaci

  1. Bedrooms: 4
  2. Baths: 3
  3. Approx. 2712 sqft
  1. MLSID: G5101841
  2. Provided by OLYMPUS EXECUTIVE REALTY INC
  3. Contact Nancy Pruitt, PA
  4. mfrmls
  5. DMCA Notice
Listing Details for 240 Meredith Boulevard, WINTER HAVEN, FL 33881
$385,276.00 ($142.06 / sqft )

240 Meredith Boulevard Virtual Tour New Construction Reduced More Like This

Under Construction. Welcome to this stunning Dream Finders Poinciana floorplan, located in the highly sought after community of Willowbrook near a beautiful golf course in Winter Haven, FL. This spaci

  1. Bedrooms: 4
  2. Baths: 3
  3. Approx. 2712 sqft
  1. MLSID: G5101858
  2. Provided by OLYMPUS EXECUTIVE REALTY INC
  3. Contact Nancy Pruitt, PA
  4. mfrmls
  5. DMCA Notice
Details for 268 Meredith Boulevard, WINTER HAVEN, FL 33881
$374,277.00 ($147.01 / sqft )

268 Meredith Boulevard Virtual Tour New Construction Reduced More Like This

Welcome to this stunning Dream Finders Mulberry floorplan, located in the highly sought after community of Willowbrook near a beautiful golf course in Winter Haven, FL. This spacious 4 bedroom, 2.5 ba

  1. Bedrooms: 4
  2. Baths: 3
  3. Approx. 2546 sqft
  1. MLSID: G5101852
  2. Provided by OLYMPUS EXECUTIVE REALTY INC
  3. Contact Nancy Pruitt, PA
  4. mfrmls
  5. DMCA Notice

Contact Info

  1. Broker IDX Sites Inc.
  2. We are the World
  3. 750.420.3943
  4. Toll Free: 005578193
  5. support@brokeridxsites.com
Wade M. Berlin